Top
m

A++ (nZEB) ENERGY CLASS RESIDENTIAL BUILDING IN AGIA PARASKEVI

A++ (nZEB) ENERGY CLASS RESIDENTIAL BUILDING IN AGIA PARASKEVI

We are proud to present our new residential development, situated on our privately owned plot at 19 Karaiskaki Street in Agia Paraskevi. Nestled on the gentle slopes of Mount Hymettus, the neighborhood offers tranquility, greenery, and an ideal setting for modern living.

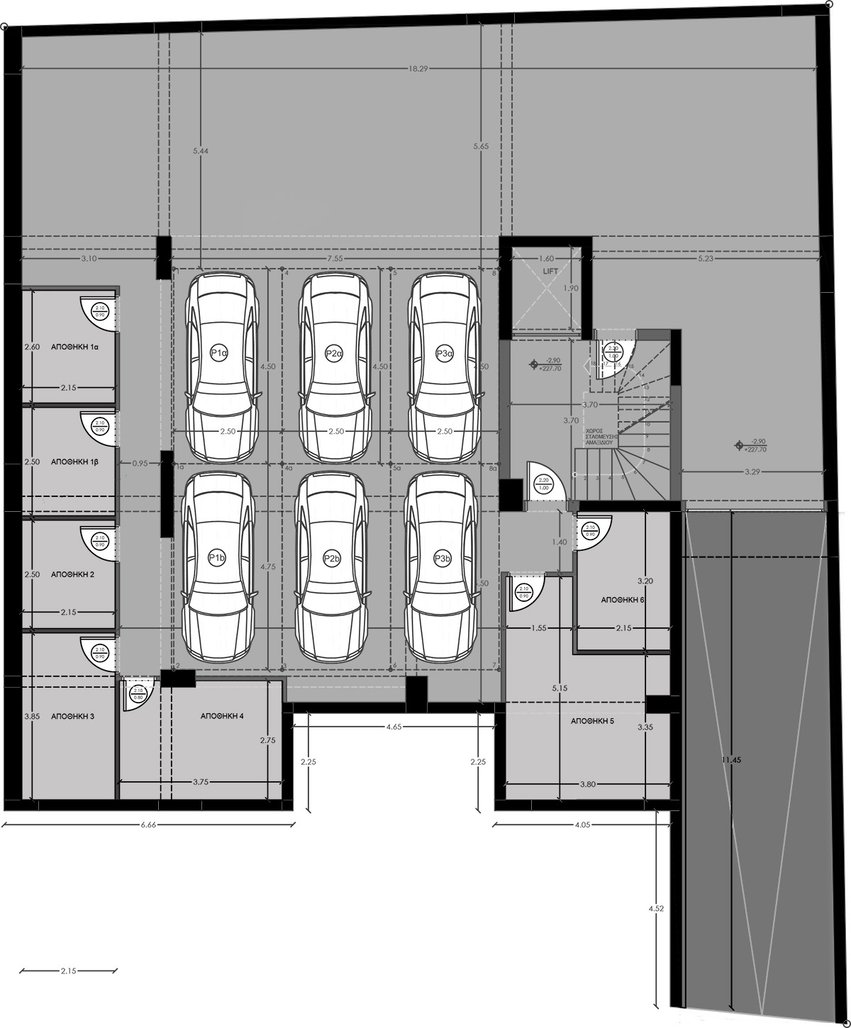
This elegant five-storey building, raised on pilotis and complemented by a basement, attic, and one-pitched roof, has been thoughtfully designed to combine functionality, aesthetics, and architectural harmony.

Every aspect of the project—from the internal layout to the façade design and overall architectural expression—reflects our core philosophy and the distinctive quality found in all our projects. Special attention has been given to premium materials, advanced installations, and energy-saving systems, ensuring that the building achieves nearly zero energy consumption, in full compliance with the Energy Performance of Buildings Regulation (KENAK).

Detailed information on the electromechanical systems and energy performance can be found in the final two images.

 

Available residences include:

  • 1st Floor Apartment – 56.62 m²
    Includes two parking spaces on the pilotis and a storage room in the basement.

  • 2nd Floor Apartment – 72.09 m²
    Includes two parking spaces on the pilotis and a basement storage room.

  • 2nd Floor Apartment – 42.06 m2
    Includes one parking space and a basement storage room.

  • 3rd Floor Entire-Floor Apartment – 114.15 m²
    Includes two parking spaces and a basement storage room.
  • 4th Floor Entire-Floor Apartment – 114.15 m²
    Includes two parking spaces and a basement storage room.
  • 5th Floor Maisonette (Top Floor + Attic) – 155.41 m²
    Includes two parking spaces and a basement storage room.
ΚΑΤΗΓΟΡΙΑ: